DOMINO – Die universelle Fahrradüberdachung mit symmetrischer Dachkonstruktion
Maximale Spannweite, hohe Schneelastkapazität und modular erweiterbar
- Symmetrisch auskragende Dachkonstruktion
- Hohe Schneelastkapazität
- Modular erweiterbares System
Beschreibung
Domino mit Doppelstützen
Das gestalterische Konzept der Systemüberdachung DOMINO basiert auf einer symmetrisch auskragenden Dachkonstruktion, die auf einer Mittelstütze aufgelagert wird.
Um bei einseitiger als auch beidseitiger Auskragung das Erscheinungsbild zu wahren, bieten wir die Alternative mit Doppelstütze an.
Domino Monte
Gerade in höher gelegenen Regionen, spielt die Schneelast eine immer größere Rolle:
Mit der DOMINO bieten wir Lösungen, für (fast) alle Anforderungen!
Schneelast 1,5 kN/m²
Die architektonische Formensprache definiert sich eindeutig im Zitat: „weniger ist mehr“! Konstruktiv ausgerichtet am Konzept einer großflächigen Systemüberdachung bietet sich diese Variante überall dort an, wo den Kriterien „Stützenabstand” und „Dachtiefe” besondere Bedeutung beigemessen wird. Z. B. als Carport, Fahrradunterstand, Fahrgastwartehalle auf Bus- und Bahnsteigen.
Die hohe Transparenz gibt den Benutzern der Überdachung ein Gefühl der Sicherheit und schränkt die Beobachtung des fließenden Verkehrs in keiner Weise ein. Belebendes Element in der optischen Erscheinung der Überdachung ist die Symmetrie der beidseitig auskragenden Dachkonstruktion.
Die im Stegbereich der Überdachung gelochten und konisch verlaufenden Kragarme mit Schwertern
in Lochoptik stellen das Bindeglied zwischen Funktion und Design dar. Von „oben” wie von „unten” behält der Betrachter den Durchblick, durch die Wahl des Werkstoffes Glas (VSG) zur Dacheindeckung. Wer die räumlichen Grenzen der Überdachung erkennen will, wählt alternativ Trapezblech und hat dadurch bei entsprechender Witterung den Vorzug der Schattenwirkung. Erst die Kombination von Eleganz und Funktion erfüllt den Anspruch dieser Überdachung an Perfektion: Detaillösungen, wie geregelte Regenwasserabführung sind für uns selbstverständlich.
Als Fahrradüberdachung glänzt die DOMINO insbesondere in Kombination mit dem Fahrradständer BETA XXL! Mit überschaubarem Aufwand lässt sich die Durchgangshöhe der Überdachung DOMINO auf 2700 mm anheben, sodass doppelstöckige Fahrradparksysteme darunter platziert werden können. Der DOPPELSTOCKPARKER 5R+TOP bietet sich dafür an.
Übrigens:
Beide Fahrradparksysteme, d.h. sowohl der BETA XXL als auch der DOPPELSTOCKPARKER 5R+TOP sind gemäß DIN 79008 „Stationäre Fahrradparksysteme“ zertifiziert und besitzen das Prüfsiegel des ADFC!
Ihr unverbindliches Projektangebot
Unverbindliches Angebot anfordern
Antwort innerhalb von 24 Stunden – schnell & unkompliziert.
Kostenlose Expertenberatung
Von einem Experten beraten lassen – völlig kostenlos.
Produkteigenschaften Fahrradüberdachung DOMINO
Fahrradüberdachung
Fahrradunterstand
Fahrgastunterstand
Raucherpavillon
0,65 kN/m2
Trogdach
Trogdach doppelseitig
7° zur Mitte
2 x 1.500 mm
2 x 1.750 mm
2 x 2.000 mm
2 x 2.250 mm
2 x 2.500 mm
VSG-Verbundsicherheitsglas
Trapezblech (Aluzink)
940 mm
Formstahlprofile HEA
Einspannen in Köcherfundamente (Standard)
Fußplatten zum Aufschrauben (gegen Aufpreis)
5.640 mm
ja, stützenfrei
Über Sammelrinne und Fallrohre.
Austritt durch oberirdische Wasserspeier
feuerverzinkt
feuerverzinkt und zusätzlich pulverbeschichtet
verschiedene RAL Farben
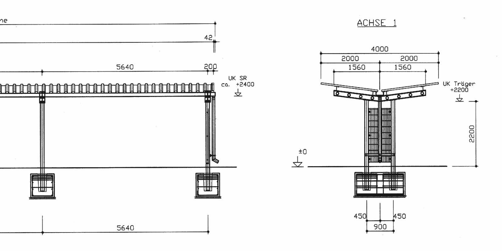
Zeichnungen Fahrradüberdachung DOMINO
Zubehör
Seitenwand: ESG, inkl. Glashalter und Stütze
Rückwand: ESG, inkl. inkl. Glashalter und Stütze
Sichtstreifen für Rück-/Seitenwand: Bestell-Nr. 000009
Abfallbehälter: Abfallbehälter RONDO, pulverbeschichtet nach RAL, 50l, Befestigung an der Stahlkonstruktion der Überdachung: Bestell-Nr. 505220
Sitzbänke, mit 3 Sitzplätzen,ca.1400 mm Länge, systemintegrierte Befestigung
Infovitrine DIN A1, Sichtfläche 831 x 584 mm, zur Befestigung an Rückwand, mit Drehflügel. Pulverbeschichtet nach RAL
Deckenleuchte LED-Feuchtraum-Wannenleuchte, Verkabelung innerhalb der Überdachungskonstruktion inkl. Anschluss an das Stromnetzbauseits. Bestell-Nr. 000001
Fußplatten zum Aufschrauben auf Betonplatte
Fahrradparker bsp. BETA XXL, Radeinstellung tief/hoch, Radabstand 400 mm
Sie haben Fragen zu diesem Produkt?
Rufen Sie uns einfach an:
06258-5552-0
Oder nutzen Sie unseren Callback-Service und wir rufen Sie zu Ihrem Wunschtermin zurück:
Callback-Service
Oder stellen Sie uns Ihre Fragen einfach mit diesem Kontaktformular.
Wir beantworten sie gerne und schnell.
Ihr unverbindliches Projektangebot
Unverbindliches Angebot anfordern
Antwort innerhalb von 24 Stunden – schnell & unkompliziert.
Kostenlose Expertenberatung
Von einem Experten beraten lassen – völlig kostenlos.




















































